Een gloednieuw project bestaande uit twee op maat gemaakte luxe vrijstaande villa’s met 3 slaapkamers, 3 badkamers en een privézwembad, gelegen aan de kust van de Middellandse Zee in de prestigieuze enclave Cala Flores - Cabo de Palos (Murcia), met een adembenemend panoramisch uitzicht en dicht bij alle voorzieningen.
Ervaar het summum van mediterraan wonen met deze twee nieuwbouwwilla's, elk gelegen op een ruim perceel van 530 m². Deze woningen zijn ontworpen voor de veeleisende huiseigenaar en combineren hedendaagse architectonische briljantheid met hoogwaardige afwerkingen, gelegen op een van de meest gewilde kustlocaties in Spanje.
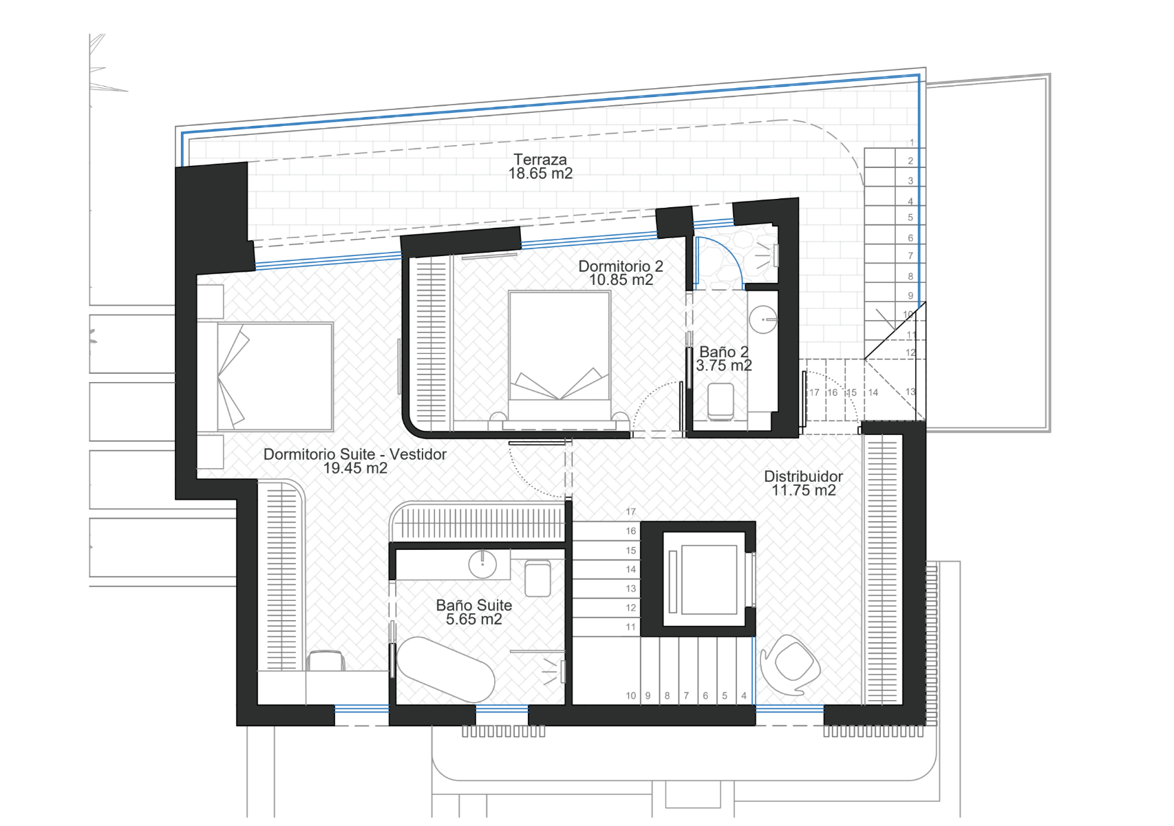
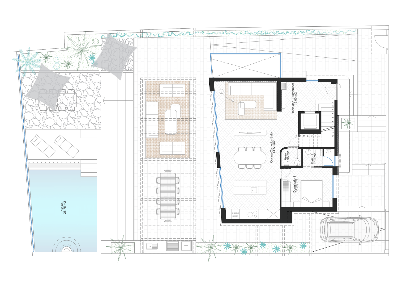
Elke villa is een meesterwerk van modern design en biedt een naadloze overgang tussen luxe binnen en ontspanning buiten. De woning heeft een totale bebouwde oppervlakte van 280 m² en is zuidoostelijk georiënteerd, waardoor het interieur baadt in natuurlijk licht. Hoewel de woning drie ruime slaapkamers heeft, is er een veelzijdige mogelijkheid om een vierde slaapkamer te creëren in de enorme kelder van 120 m². Dit ondergrondse niveau, dat al is voorzien van een complete badkamer, dient als een leeg canvas voor een privé-spa, wijnkelder, bioscoopzaal, fitnessruimte of een grote entertainmentlounge.
Op de bovenste verdieping van de villa biedt een prachtig solarium van 75 m² een panoramisch uitzicht op de Middellandse Zee, de perfecte achtergrond voor cocktails bij zonsondergang en avonden onder de sterrenhemel. Elk detail in het huis straalt kwaliteit uit, van de designkeukens en -badkamers tot de hoogwaardige ledverlichting die in elke kamer is geïntegreerd.
De buitenkant is ontworpen voor mensen die een verfijnde levensstijl waarderen. Het middelpunt van de grote, verzorgde tuin is een privézwembad van 28 m² met zoutwater, uitgerust met een zoutchloreringssysteem, een rustgevende waterval, een ingebouwde jacuzzi en een ondergedompeld zonneterras voor ultiem comfort. Naast de recreatieruimtes biedt het pand praktische hoogwaardige voorzieningen, waaronder ruime ondergrondse parkeergelegenheid voor meerdere voertuigen.
De woningen zijn voorzien van een centraal airconditioningsysteem met een regel- en zonesysteem waarmee de temperatuur in elke kamer afzonderlijk kan worden geregeld. Volledige installatie van fotovoltaïsche zonnepanelen. Bosch-keukenapparatuur (afzuigkap, oven, magnetron, inbouwvaatwasser, inductiekookplaat en koelkast in Amerikaanse stijl). Inbouwkasten en elektrische jaloezieën in alle slaapkamers. LED-verlichting binnen en buiten. Aangelegde tuinen en bloembedden met kunstgras, palmbomen, bananenbomen, struiken, druppelirrigatiesysteem en programmeerapparaat. Privézwembad met zoutchloreringssysteem, waterval en door zonne-energie verwarmde douche. Garage met gemotoriseerde deur en volledige installatie van een langzaam oplaadpunt en Schuko-stopcontact voor elektrische voertuigen.
Deze villa’s liggen in een zeer gewilde woonwijk en bieden een levensstijl die ongeëvenaard comfort en natuurschoon combineert. Het strand van Cabo de Palos ligt op slechts twee minuten lopen van uw voordeur, waardoor u moeiteloos toegang heeft tot de zee. Ondanks de privacy van de wijk Cala Flores blijft u perfect verbonden met het beste dat de regio te bieden heeft: de Mar Menor ligt op slechts 6 minuten afstand, terwijl de kampioenschapsgolfbanen en het ongerepte natuurlijke strand van Calblanque beide binnen 15 minuten rijden bereikbaar zijn. Voor stedelijke uitstapjes ligt de historische stad Cartagena op slechts 25 minuten afstand, en internationaal reizen is eenvoudig dankzij de luchthaven van Murcia op 30 minuten afstand en de luchthaven van Alicante die binnen een uur bereikbaar is.
Cabo de Palos is niet zomaar een locatie; het is een levensstijl. Dit charmante vissersdorp, bekend om zijn iconische vuurtoren en mariene reservaten van wereldklasse, is uitgegroeid tot een vooraanstaande luxe bestemming. Cala Flores is de parel van dit gebied: een rustige, chique woonwijk die de perfecte balans biedt tussen privacy en nabijheid. Bewoners genieten van een levendige lokale sfeer die wordt gekenmerkt door hoogwaardige visrestaurants, een bruisende jachthaven en de ruige schoonheid van de omliggende kliffen. Of u nu op zoek bent naar een rustig toevluchtsoord of een actieve levensstijl aan de kust, dit blijft het meest prestigieuze adres aan de Costa Cálida.
Deze informatie is hier onderhevig aan fouten en maakt geen deel uit van een contract. De aanbieding kan zonder kennisgeving worden gewijzigd of ingetrokken. Prijzen zijn exclusief aankoopkosten.