Un tout nouveau projet de 18 maisons de ville de style contemporain, comprenant 2 ou 3 chambres et 2 salles de bains, situé au sein du complexe Santa Rosalia Village - Torre Pacheco (Murcia), entouré de commodités et d'installations sportives, à proximité de plusieurs terrains de golf et à quelques minutes en voiture des magnifiques plages de Los Alcázares.
Chaque logement du complexe résidentiel dispose d'une terrasse à l'avant et d'un spacieux solarium sur le toit avec cuisine d'été, idéal pour profiter du soleil toute l'année. Les résidents bénéficient également d'un espace commun avec piscine pour se détendre et se relaxer.
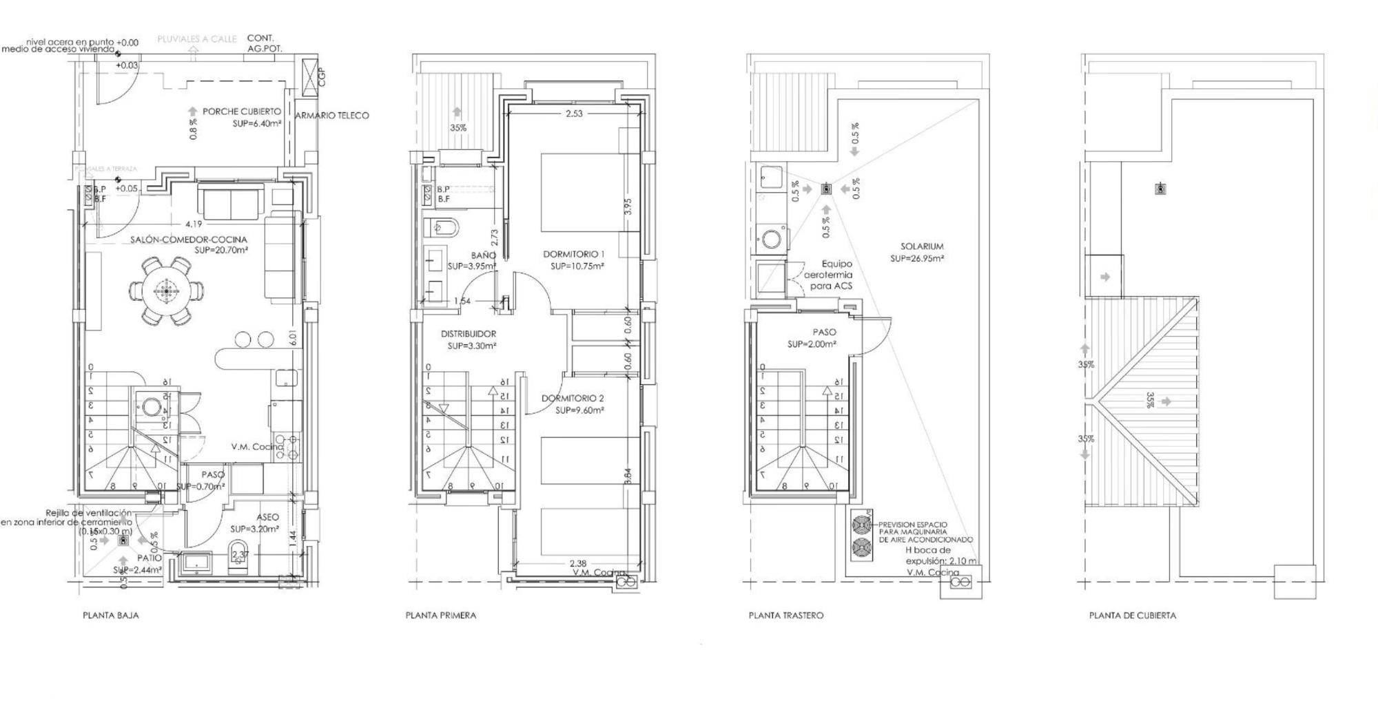
Les logements ont été conçus dans un style contemporain avec un agencement ouvert. L'aménagement intérieur comprend un salon et une salle à manger lumineux et spacieux, dotés de portes-fenêtres donnant sur la terrasse avant. Au sein de l'espace de vie principal se trouve une cuisine américaine entièrement équipée, aux finitions blanches, avec un comptoir de petit-déjeuner dans des tons bois, ainsi qu'un placard à linge pratique sous l'escalier. Le rez-de-chaussée comprend également une salle de bains d'invités. L'escalier intérieur mène au premier étage, où se trouve la chambre principale située à l'avant de la propriété, ainsi qu'une autre chambre double de bonne taille et une grande salle de bains familiale accessible par une double porte depuis la chambre principale et le couloir du premier étage. L'escalier intérieur donne également accès à la vaste terrasse sur le toit de 27 m², qui comprend une cuisine d'été équipée d'une prise pour réfrigérateur, d'une pré-installation pour lave-linge et d'un évier en aluminium, ainsi que d'un meuble à portes coulissantes et d'un plan de travail.
Les propriétés sont livrées avec la pré-installation de la climatisation, les appareils électroménagers de cuisine (four, plaque vitrocéramique, hotte aspirante, micro-ondes, réfrigérateur-congélateur et lave-vaisselle), des armoires encastrées dans toutes les chambres, des stores manuels dans le salon et les chambres, un éclairage LED intérieur et extérieur, une cuisine d'été sur le solarium, un parking souterrain et un débarras.
Le Santa Rosalia Lake and Life Resort occupe un emplacement stratégique sur la Costa Calida, à seulement 4 km de la mer et à proximité de la Costa Blanca. Entourée de vergers, Santa Rosalia est située entre les municipalités de Torre Pacheco et Los Alcazares. Elle fait partie de la célèbre région de Mar Menor, sur la Costa Calida, avec 250 km de côtes réparties entre deux mers, la Méditerranée et la Mar Menor. Vous y trouverez de magnifiques plages et criques au sable chaud et aux eaux cristallines.
Santa Rosalia Lake and Life Resort, un lieu d'attractions pour profiter de la nature, du sport et des loisirs, un complexe de luxe unique avec une superficie impressionnante de 700 000 m2 et 4 000 arbres méditerranéens créant un environnement naturel durable. Les maisons de luxe sont disposées autour d'un parc central spectaculaire (réservé aux propriétaires) qui offre une grande sélection d'installations sportives, de loisirs et de restaurants, disposés autour d'un lac à couper le souffle aux eaux claires et étincelantes, avec des plages pour se détendre et profiter du soleil. Le complexe est clôturé avec un contrôle d'accès et une sécurité 24 heures sur 24, un magnifique aménagement paysager, des espaces verts, des aires de jeux pour les enfants et une large gamme de services conçus pour une vie tout au long de l'année. Vous pourrez profiter d'un large éventail d'activités et d'équipements, idéalement situé à proximité des 17 terrains de golf locaux, dont Mar Menor Golf Resort, Roda Golf, La Serena Golf, La Manga, Mosa Trajectum, Las Ramblas, Campoamor, Villamartin et le Las Colinas Golf and Country Club, récompensé par de nombreux prix. Vous n'êtes qu'à une courte distance en voiture des belles plages de sable de Los Alcazares, qui disposent d'une magnifique promenade et d'un grand nombre de bars et de restaurants où vous pourrez déguster la cuisine locale. L'aéroport international de Corvera (Murcia) n'est qu'à 25 minutes et l'aéroport d'Alicante à moins d'une heure de route.
Cette information donnée ici est sujette à des erreurs et ne fait partie d'aucun contrat. L'offre peut être modifiée ou retirée sans préavis. Les prix n'incluent pas les coûts d'achat