Un complejo residencial nuevo y exclusivo con 28 apartamentos de lujo de estilo contemporáneo, con 2 o 3 dormitorios y 2 baños, situado en La Serena Golf - Los Alcázares (Murcia), a poca distancia de la costa y de todos los servicios necesarios para la vida cotidiana: tiendas, restaurantes, zonas de ocio e instalaciones. Además, su ubicación ofrece excelentes conexiones con las principales vías de transporte, lo que facilita el acceso a los aeropuertos de Murcia y Alicante.
Este magnífico edificio ofrece la posibilidad de elegir entre apartamentos en planta baja con jardín privado, apartamentos en primera planta con una amplia terraza y áticos con un gran solárium privado en la azotea, para disfrutar al máximo de la vida al aire libre. Todas las viviendas están diseñadas para ofrecer el máximo confort y calidad de vida. El complejo residencial cuenta con hermosas zonas verdes y una amplia piscina comunitaria, ideal para disfrutar del excelente clima mediterráneo, así como plazas de aparcamiento y trasteros.
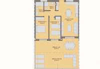
Las propiedades cumplen con los más altos estándares y los interiores de los apartamentos destacan por su diseño elegante y funcional. La distribución interior incluye un salón-comedor diáfano, amplio y luminoso, con grandes ventanales que dan a la terraza. Dentro de la zona de estar principal hay una moderna cocina de estilo americano totalmente equipada con armarios superiores e inferiores. El amplio dormitorio principal incluye un baño en suite; hay otro dormitorio doble de buen tamaño; todos los dormitorios tienen acceso a la terraza a través de puertas acristaladas, y hay un baño de invitados independiente. Los áticos cuentan con una característica escalera de caracol exterior en la terraza que conduce a la amplia terraza solárium de la azotea, perfecta para relajarse y disfrutar del sol durante todo el año.
Situado junto al prestigioso campo de golf "La Serena Golf". Este campo de golf es muy conocido por sus lagos y vegetación que se entrelazan con el campo de golf. El agua y los lagos están presentes en 16 de los 18 hoyos, pero todo el campo está diseñado para ofrecer al golfista diferentes estrategias en cada hoyo. El campo de golf de La Serena fue diseñado por Manuel Piñero, uno de los mejores diseñadores en combinar campos de golf y zonas residenciales. El campo de golf rodea la "Torre del Rame" y está situado en el lado sur de la fantástica ciudad tradicional de Los Alcázares. Otro aspecto que hace único a este campo de golf es que se encuentra a poca distancia del centro de la ciudad, algo imposible de encontrar en otros lugares de golf que permiten disfrutar de la tranquilidad y la belleza de la zona sin renunciar al acceso a los servicios que ofrece Los Alcázares.
Los Alcázares es un pequeño pueblo de la Costa Cálida, situado a tan sólo 15 minutos de la histórica ciudad de Cartagena. Rodeado por las cálidas y tranquilas aguas del Mar Menor y cuenta con hermosas playas galardonadas que están conectadas con un magnífico paseo marítimo. El Mar Menor es una laguna de agua salada de 128 km cuadrados con una temperatura del mar de 5 grados por encima del Mediterráneo, es bastante desconocido para mucha gente y uno de los secretos mejor guardados de España. El agua del Mar Menor, rica en minerales, es venerada por sus propiedades saludables y está considerada por la Organización Mundial de la Salud como uno de los lugares más sanos del planeta.
Las siete playas principales de Los Alcázares son Las Salinas, Los Narejos, Las Palmeras, El Espejo, Manzaneres, Carrión y La Concha. Los campos de golf más cercanos a Los Alcázares son Roda Golf y La Serena Golf aunque a poca distancia en coche de Los Alcázares encontrará algunos campos de golf más que incluyen La Manga, Torre Pacheco, Mosa Trajectum, Las Ramblas, Campoamor, Villamartín y el galardonado Las Colinas Golf and Country Club. En Los Alcázares encontrará todo lo que necesita con una gran variedad de bares, restaurantes, supermercados y tiendas locales para elegir. También hay una gran variedad de deportes acuáticos disponibles, incluyendo vela, buceo, jet ski, windsurf, kite surf y pesca. El aeropuerto de Alicante está a 50 minutos en coche y el aeropuerto de Murcia (Corvera) está a sólo 25 minutos.
Esta información que se proporciona aquí está sujeta a errores y no forma parte de ningún contrato. La oferta se puede cambiar o retirar sin previo aviso. Los precios no incluyen los costes de compra