Un nuevo y exclusivo proyecto de lujo de 72 apartamentos de 2 o 3 dormitorios y 2 baños situado en San Cayetano (Murcia), cerca de todos los servicios y a poca distancia en coche de las hermosas playas del Mar Menor. El proyecto combina a la perfección tranquilidad, comodidad y diseño contemporáneo.
El complejo consta de 72 apartamentos distribuidos en 4 edificios rodeados de zonas comunes cuidadosamente diseñadas que incluyen dos piscinas comunitarias y un gimnasio totalmente equipado con máquinas de fitness y musculación que permite disfrutar de vistas privadas a través de las paredes acristaladas. También hay útiles baños comunes dentro de la zona del gimnasio, y las propiedades disponen de plazas de aparcamiento exteriores y trasteros privados en el sótano.
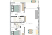
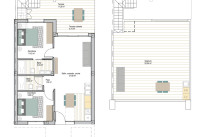
Se puede elegir entre apartamentos de 2 dormitorios y 2 baños o de 3 dormitorios y 2 baños, con amplias terrazas en la planta baja y la primera planta, y áticos con solárium privado en la azotea, ideales para disfrutar del clima mediterráneo. La distribución interior consta de un amplio salón-comedor diáfano con grandes ventanales que dan a la terraza. Dentro de la sala de estar principal hay una cocina moderna totalmente equipada de estilo americano con muebles altos y bajos blancos. El dormitorio principal está situado en la parte delantera de la propiedad, con puertas que dan a la terraza, e incluye un baño en suite. Hay otro dormitorio de buen tamaño y un baño de invitados independiente. Los áticos tienen una escalera exterior en la terraza que conduce al amplio solárium de la azotea, de aproximadamente 50 m2.
Todas las propiedades incluyen la preinstalación de aire acondicionado por conductos, electrodomésticos de cocina (horno, placa de inducción, campana extractora, microondas, frigorífico-congelador y lavavajillas), armarios empotrados en todos los dormitorios, iluminación LED interior y exterior, sistema de videoportero, cocina de verano sin electrodomésticos (cuando corresponda), plaza de aparcamiento exterior y trastero, lo que garantiza el máximo confort y funcionalidad a los propietarios.
San Cayetano es un tranquilo y tradicional pueblo español situado en el municipio de Torre Pacheco, en Murcia, conocido por sus raíces agrícolas, su ambiente auténtico y su céntrica ubicación. Situado a 10-15 minutos de las playas del Mar Menor y a 15 minutos del aeropuerto internacional de Murcia, ofrece fácil acceso a campos de golf y a una gran variedad de servicios. Se trata de una comunidad predominantemente española con una creciente población de expatriados, y el pueblo es autosuficiente, con bares, restaurantes, tiendas, bancos y farmacias locales. Otras características son los parques infantiles, las zonas deportivas al aire libre con mesas de ping-pong y la proximidad a más de 15 campos de golf a menos de 20 minutos en coche, incluido el Roda Golf & Beach Resort.
Esta información que se proporciona aquí está sujeta a errores y no forma parte de ningún contrato. La oferta se puede cambiar o retirar sin previo aviso. Los precios no incluyen los costes de compra