Un nuevo proyecto de 10 apartamentos de estilo contemporáneo con 2 o 3 dormitorios y 2 o 3 baños, situados en Lo Pagán - San Pedro del Pinatar (Murcia), en segunda línea de la hermosa playa de arena, y rodeados de todos los servicios, el popular parque regional de las Salinas de San Pedro, zonas deportivas y varios campos de golf.
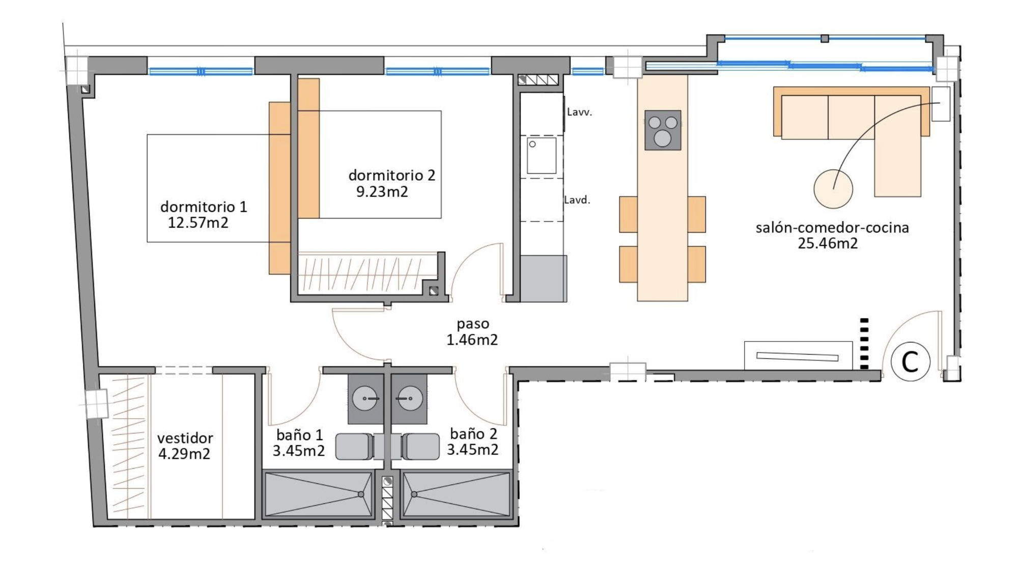
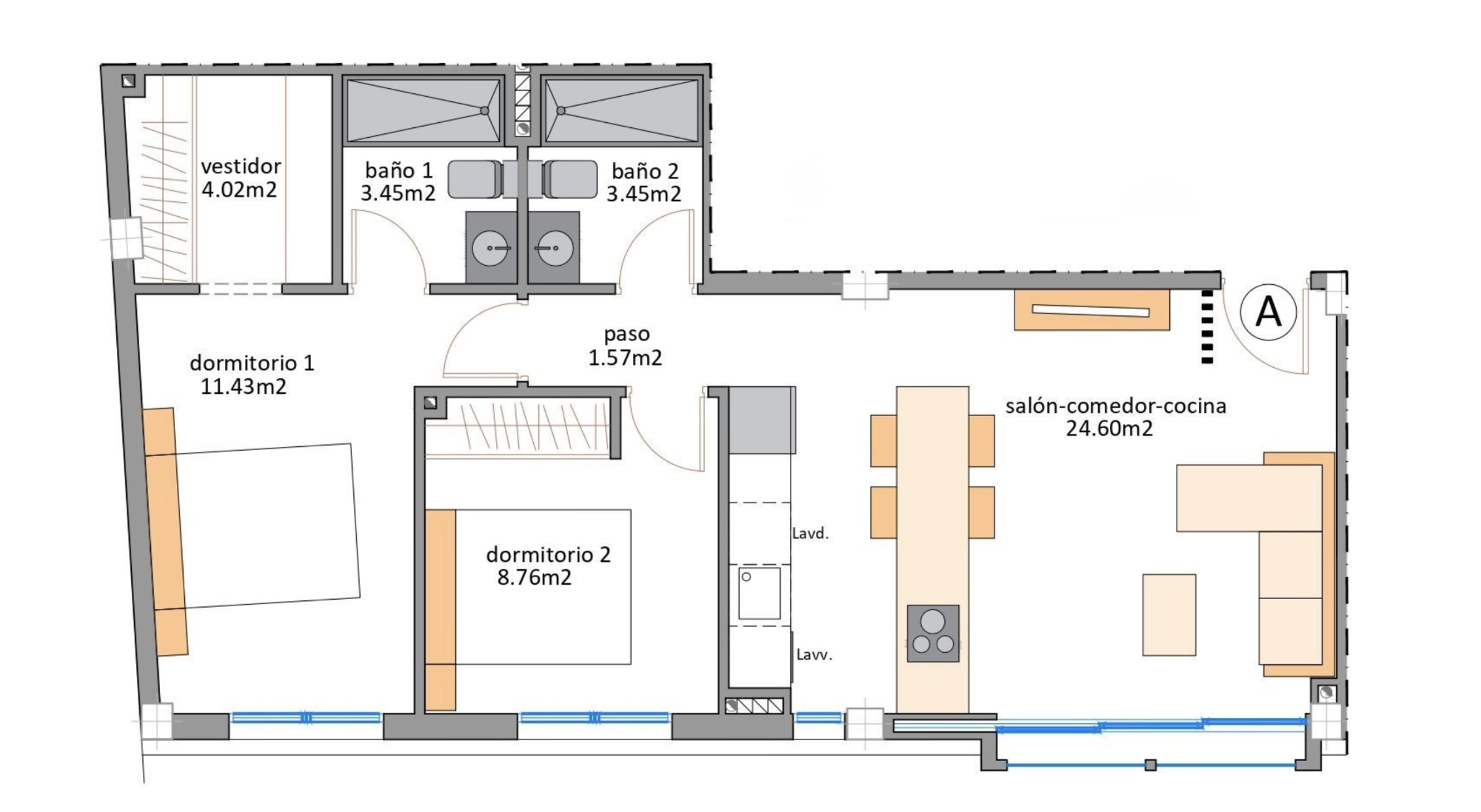
Este proyecto consta de apartamentos de 2 dormitorios y 2 baños, con una piscina comunitaria de 17 m². La última planta cuenta con un magnífico ático de 3 dormitorios y 3 baños con piscina privada, terrazas y un gran solárium en la azotea. Todas las propiedades tienen la opción de aparcamiento subterráneo y trastero por 20 000 € adicionales.
Los interiores son elegantes y funcionales, las distribuciones comprenden un salón y comedor diáfanos, luminosos y espaciosos, con grandes ventanales, y dentro de la sala de estar principal hay una elegante cocina moderna de estilo americano totalmente equipada con armarios altos y bajos, también equipada con todos los electrodomésticos. El amplio dormitorio principal incluye un cuarto de baño en suite y un vestidor. Hay otro dormitorio doble de buen tamaño y un cuarto de baño independiente para invitados. Las propiedades incluyen aire acondicionado por conductos, toalleros calefactados en los cuartos de baño, electrodomésticos de cocina, armarios empotrados en todos los dormitorios y persianas eléctricas.
San Pedro del Pinatar es uno de los principales destinos turísticos de la costa murciana, este pequeño pueblo costero es famoso por su pasado pesquero, sus baños de barro terapéuticos y sus fantásticas playas. San Pedro del Pinatar está situado en el Mar Menor, la laguna natural creada por la franja de La Manga, en la Costa Cálida mediterránea, en el límite norte de Murcia con Alicante. Los principales atractivos de San Pedro se concentran en torno a la playa y la orilla. Aquí se encuentra Lo Pagán, un animado centro turístico que cuenta con todo tipo de instalaciones vacacionales, como hoteles, bares, restaurantes y tiendas. Junto al largo paseo marítimo frente al Mar Menor se extienden playas como La Puntica o Villananitos. Este entorno acuático, unido a las instalaciones de su puerto deportivo, permite la práctica de numerosos deportes, como la vela, el submarinismo o el windsurf. Todos los lunes se celebra en San Pedro un mercado semanal en el que se ofrecen productos frescos y numerosos artículos artesanales. La zona también está cerca del centro comercial Dos Mares, a sólo 10 minutos en coche.
Esta información que se proporciona aquí está sujeta a errores y no forma parte de ningún contrato. La oferta se puede cambiar o retirar sin previo aviso. Los precios no incluyen los costes de compra